Property Details

Advanced
Search

4 BEDROOM BUILDING PACKAGE FOR SALE IN ZAMBESI MANOR

R3,800,000

ZAMBEZI MANOR - BUILDING PACKAGE, Zambesi Mannor, Pretoria Gauteng

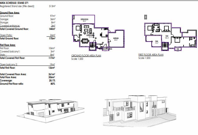
4 Beds 4 Baths 316 Sq M 2 Garages

Description

4 Bedroom newly built double storey house for sale in Zambezi Manor

Newly built free standing and full title house in Zambezi Manor
you choose your own interior – limited

Time finished: OCT 2023

NO TRANSFER DUTY

Bedrooms: 4
Bathrooms: 3.5
Dining and Lounge: 2
Balconies: 2
Garages: 2 and parking
Pajama lounge
Patio

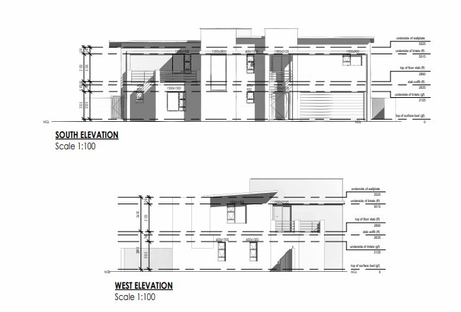
GROUNDFLOOR:
COVERED ENTRANCE TO DINING AND LIVING ROOM WITH OPEN PLAN KITCHEN/ SCULLERY
BAR/STUDY/PLAYROOM
GUEST ROOM AND GUEST BATHROOM
DOUBLE GARAGE
ENTERTAINMENT AND BUILT IN BRAAI – COVERED

UPSTAIRS:
STAIRS TO PAJAMA LOUNGE
MAIN BEDROOM WITH ENSUITE BATHROOM AND DRESSER AND COVERED BALCONY
BALCONIES ETC….
Enough space for a swimming pool – at extra cost

Interior can by chosen by you – limited
Contact to view all the different styles!

Serious, qualified buyers can contact us to view the full plans.

Zambezi Manor is located within the sought-after Montana East and gives you the opportunity to live in this upmarket security estate which offers more than just a place to live!

Buy now and experience the upmarket lifestyle that you have been waiting for!

OUR BENEFITS:

• FULL security with CCTV, motion sensors, biometric access control and patrolling guards.
• Clubhouse with swimming pool, kids play area, kick-about and outdoor gym!
• Work from home with Fibre ready houses.
• Save with solar geyser & pre-paid meters
• Private Gardens with garden services
• Pet friendly

PERFECT LOCATION:
• Easy access to the N1 & N 4 Highways
• Zambezi Super Spar, Tops, restaurants and much more on your doorstep!
• 15 minutes from Pretoria CBD
• 20 Minutes from Sefako Makgatho Health Sciences University
• 15 Minutes from Onderstepoort Veterinary Academic Hospital
• 10 Minutes from Wonderboom National Airport
• 10 Minutes from Kolonnade Shopping Centre
Our exclusive homes are on show daily! View today to avoid disappointment!

*Ts and Cs apply

Agent Information

5 Properties
Contact Agent

Rudolph Van Den Berg

Registered with the PPRA - Principal FFC

rudolph@emacplan.co.za

082 821 7129

Loading...
Emacplan | Website by ADSSA | © 2018